Denne hjemmeside sætter cookies for at opnå en funktionel side og for at huske dine foretrukne indstillinger. Ved hjælp af cookies laver vi statistikker og analyserer besøg på vores side så vi sikrer, at siden hele tiden forbedres, og at vores markedsføring bliver relevant for dig. Hvis du giver dit samtykke, så tillader du, at vi sætter cookies, og at vi behandler de personoplysninger, som indsamles via dem. Du kan læse mere om cookies i vores Cookiepolitik.

Herunder kan du vælge cookies til eller fra. Navnet på de forskellige typer af cookies fortæller, hvilket formål de tjener.

Crosstrainer

Varenummer:
551012401

Stilum Crosstrainer til udendørs fitness

Stilum Crosstrainer en klassiske cardio træner som ved kontinuerlig træning forbedre kondition og udholdenhed. Crosstraineren er et meget populært træningsredskab, da det styrker hele kroppens muskulatur, og jo flere muskler der påvirkes under træning jo bedre er træningseffekten. Desuden skyldes maskinens popularitet at træningen foregår i en opretstående stilling, hvilket er perfekt til de mange mennesker med "siddende job". Et godt og robust træningsredskab til effektiv kropsformning, perfekt til det udendørs træningsområde. Det er vandalsikret, udført i vejrbestandige materialer. Der medfølger instruktioner til træningsredskabet. Fra 14 år (BEMÆRK - Anbefalet højde min. 140 cm).

Med Crosstraineren trænes følgende muskelgrupper:
Hele kroppen trænes med denne træningsmaskine. Se billede af berørte muskelgrupper (hovedmuskelgrupper (rød) og understøttende muskulaturer (lyse rød).

Materialer: Rustfrit stål (V2A) kombineret med gummigranulat eller caoutchouc. Kan bruges i alt slags vejr uanset årstid.

Mål: 218 x 72 x 205,5 cm. Faldhøjde: 0 cm. Minimum pladskrav: 350 x 520 cm. Sikkerhedsareal: 18,20 m2. Faldbeskyttelse: 19,25 m2.

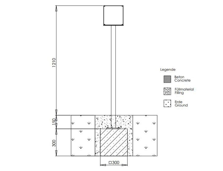
BEMÆRK at træningsredskabet skal støbes fast og det anbefales at der etableres faldsand eller andet faldunderlag, som fx sikkerhedsfliser / gummifliser eller græs. Læs og se mere om vores udvalg af faldunderlag her.

Træningsredskabet er TÜV-certificeret. Sikkerhed i henhold til DIN EN 16630.

Se hele vores udvalg af Stilum udendørs fitnessredskaber her.

NB! Prisen er eksklusiv levering og opsætning, som beregnes separat til det pågældende sted.

Inkl. moms: 65.760,00  DKK
Ekskl. moms: 52.608,00 DKK
Antal
Læg i kurv

Leveringsinformation

Leveringstid 3-10 uger. BEMÆRK fragtprisen for dette produkt beregnes efterfølgende og tillægges ordren. Beløbet vil fremgå på ordrebekræftelsen, som fremsendes efter 1-2 hverdage, når ordren er behandlet. Her vil nærmere info omkring forventet leveringstid også fremgå.
Produktet er endnu ikke anmeldt. Skriv en anmeldelse.

Spørgsmål til produktet eller brug for et tilbud? Vi er klar til at hjælpe.

kontakt os ikon
Spørgsmål eller brug for et tilbud? Vi er klar til at hjælpe.
E-mail: boel@boeldenmark.com
Tlf: +45 8617 1007
Se vores inspirationsside her! Se vores inspirationsside her!